Bytový dom
Byt
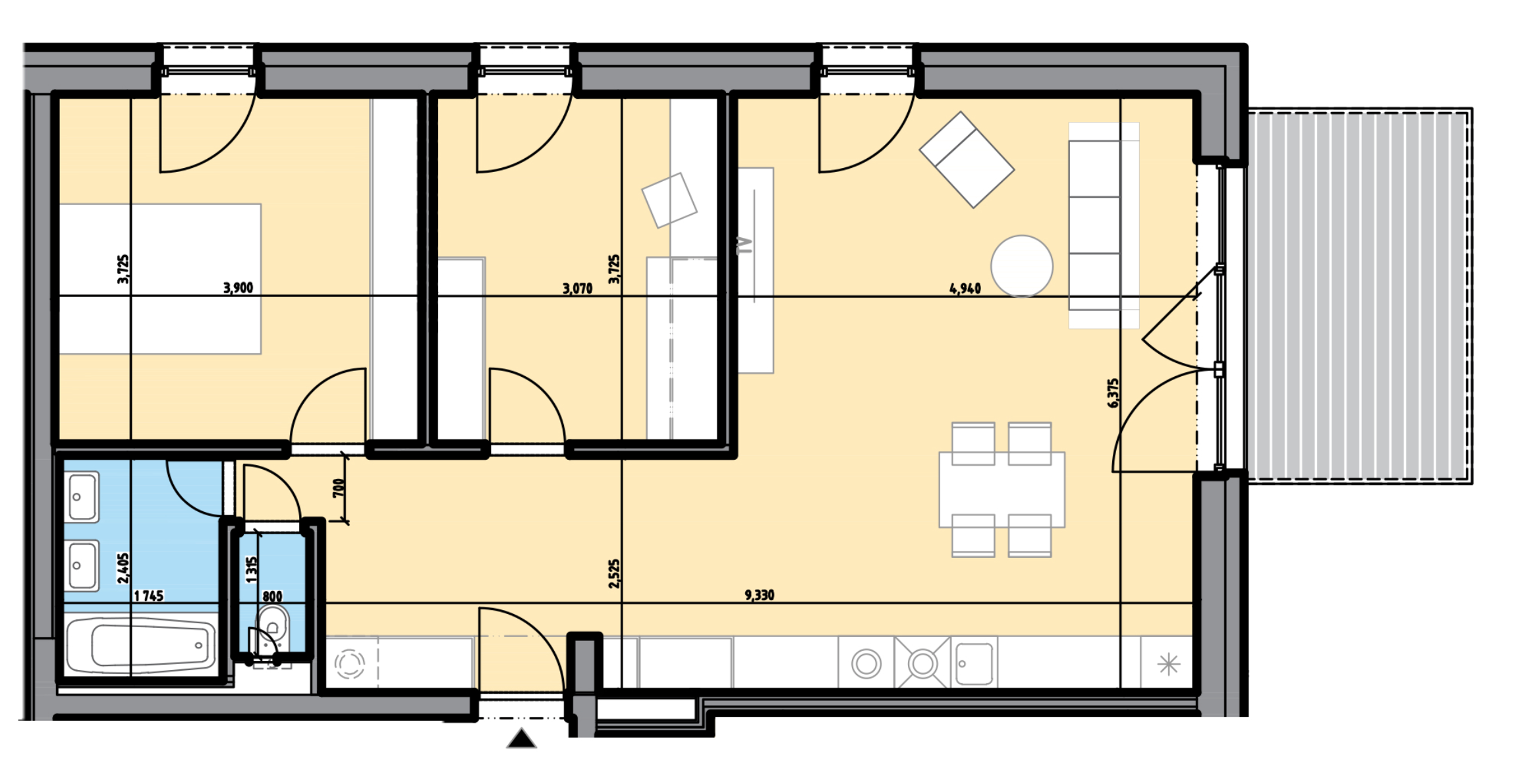
1_3
Celková výmera
139.66 m2
Počet izieb
3
Poschodie
1 NP
okolie Popradu
Svit
Pôdorys bytu
Exteriér bytu Interiér bytu
Orientácia
Poschodie
Byt
1_3
Byt m2
Plocha balkónu 60.62 m2
Pivničná kobka 4.76 m2
Orientácia Sever, Východ
Cena s DPH
Poznámka:
Pôdorys a rozmiestnenie vnútorného vybavenia bytu sú ilustračné. Uvedené rozmery sú predbežné a nemusia sa zhodovať s realizačným projektom. Do výmery bytu sa nezapočítava priestor pod priečkami. Zariaďovacie predmety nie sú súčasťou dodávky.
+421 910 86 44 86
svit@realitymgm.sk
MGM Reality MGM & Partners s.r.o.
Realitné centrum